硬刚! 大温南素里新Costco惹民愤, 888人联名请愿反对! 二读已通过

据温哥华港湾综合报道:自从几年前搬到素里的Grandview Heights后,Tiffany Bullinger 就一直看到街对面的空地上树木茂盛生长。但她担心,这一切很快就可能消失。

“我每天都会从卧室窗户往外看,心里想着,一旦开始施工,这些美丽的树木都会被砍掉,真是令人难以接受,”她说。“这真的让我心碎。”

xyche

qbfw6

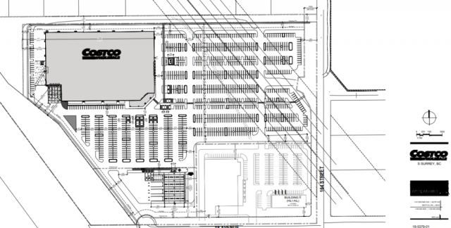
Bullinger 居住在南素里164街一块拟建165,000平方英尺Costco仓储店的地块对面。该开发项目还包括一个加油站和989个停车位。素里市议会已完成该提案的第一次和第二次审议,并安排了周一晚上的公开听证会。

aodrw

Bullinger 是888名在网上签署请愿书反对Costco加拿大公司提交的土地使用申请的人之一,原因包括交通拥堵和环境问题。

0zppm

请愿书中写道:“该地区只有一条进出口道路,拟议停车场的出入口有限,存在严重拥堵和潜在安全隐患的高风险,尤其是在高峰时段。”

请愿书还指出,拟议地点属于生态敏感区域,该开发可能对当地野生动植物及位于南面14大道附近的Fergus Creek流域造成不利影响。

Costco提交的申请旨在将地块从住宅用地改为商业用地,以便在部分地块上进行开发。申请还提出将两块大地分为四块,其中一块作为市政拥有的保护河岸区,另一块保留为住宅地以便未来潜在开发。

fov0p

Costco的提案将意味着砍伐1,107棵树,但计划保留或替换572棵树,并预计向绿色城市计划贡献约517,000加元。Costco还寻求允许建筑靠近附近水道的距离低于通常允许的标准,但公司表示将在地块东侧和南侧增加绿色缓冲带。

n0dn1

对于Bullinger来说,这家拟建的商店威胁到了她四个孩子成长的安静、适合家庭居住的社区。

“我们非常幸运,孩子们能在我们房子前的人行道上安全玩耍……一旦Costco建成,这将不再安全。”

为应对预期的交通增加,计划包括拓宽商店东侧的164街和南侧的18大道。在164街与19大道将建新环岛,并在164街与20大道以及168街与20大道增设交通信号灯。

4hgib

虽然Bullinger并不反对Costco仓储店,但她认为该空地选址不当。

“该地区被划为轻工业区,而不是大型商超和加油站。”

素里市市长Brenda Locke对项目的益处表示赞赏。

“看到像Costco这样的主要雇主继续投资素里,令人鼓舞,”Locke在新闻稿中表示。

“这一提案意味着,在南素里这个发展最快的地区之一,可能会开设第二家Costco门店。虽然申请将经历完整的土地使用审批流程,但看到社区获得如此程度的信心和关注,令人感到兴奋。”

来源:温哥华港湾综合

免责声明:转载此文章的目的旨在传播更多信息以服务于社会,版权归原作者所有,我们已在文章结尾注明出处,如有标注错误或其他问题请发邮件到18cacom@gmail.com,谢谢!